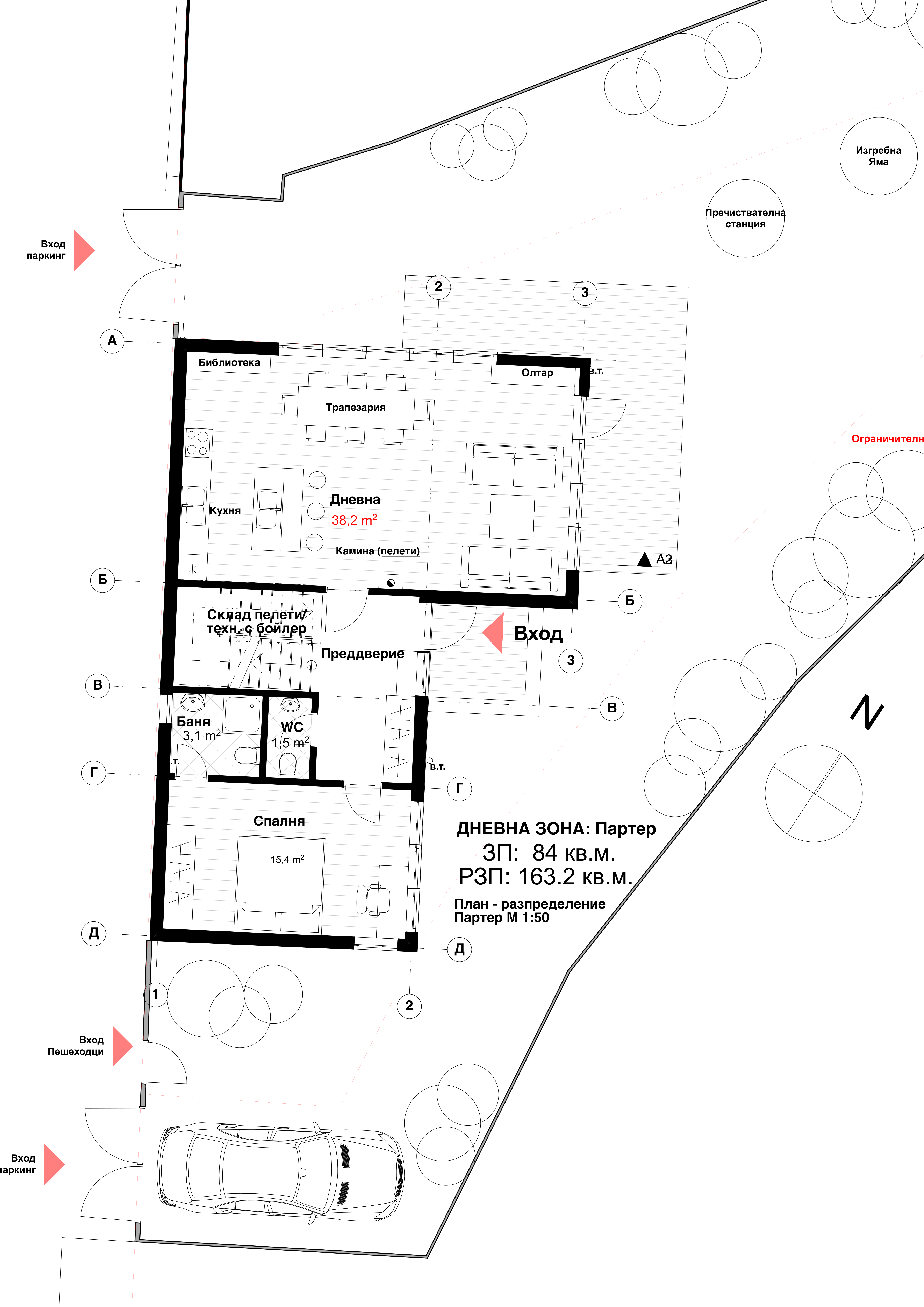
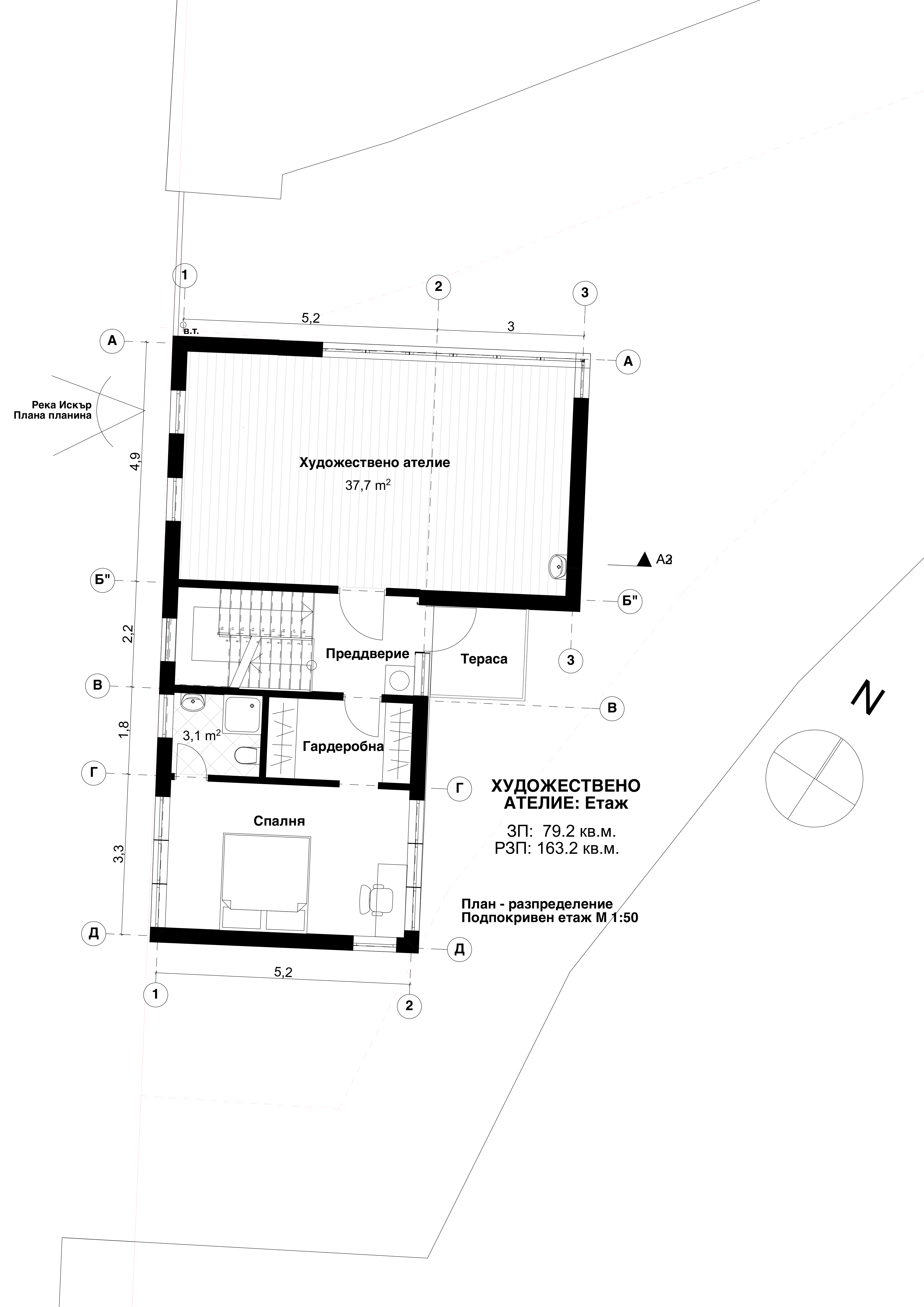
Low-energy house with wooden construction, Sofia area


Project Info:
Architecture: modern architecture with traditional concepts and design elements, following the functional program of the home
Floor area: 163 sq.m. (2-storey house)
Location: Sofia area
HVAC: Biomass oven
Project owner: Private
Concept floor plans:



