Single-family house renovation in Austria
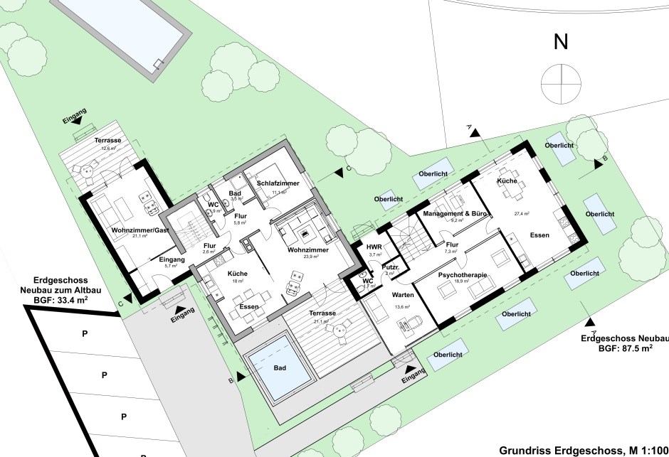
Architectural design for a renovation of a single-family house in the town of Werfen part of the Austrian state of Salzburg with a beautiful view towards the Limestone Alps, which are an inspiration for the project concept and design


Existing house photos
Project ownership: Next IT Services LTD & Die Werkbank IT GmbH











