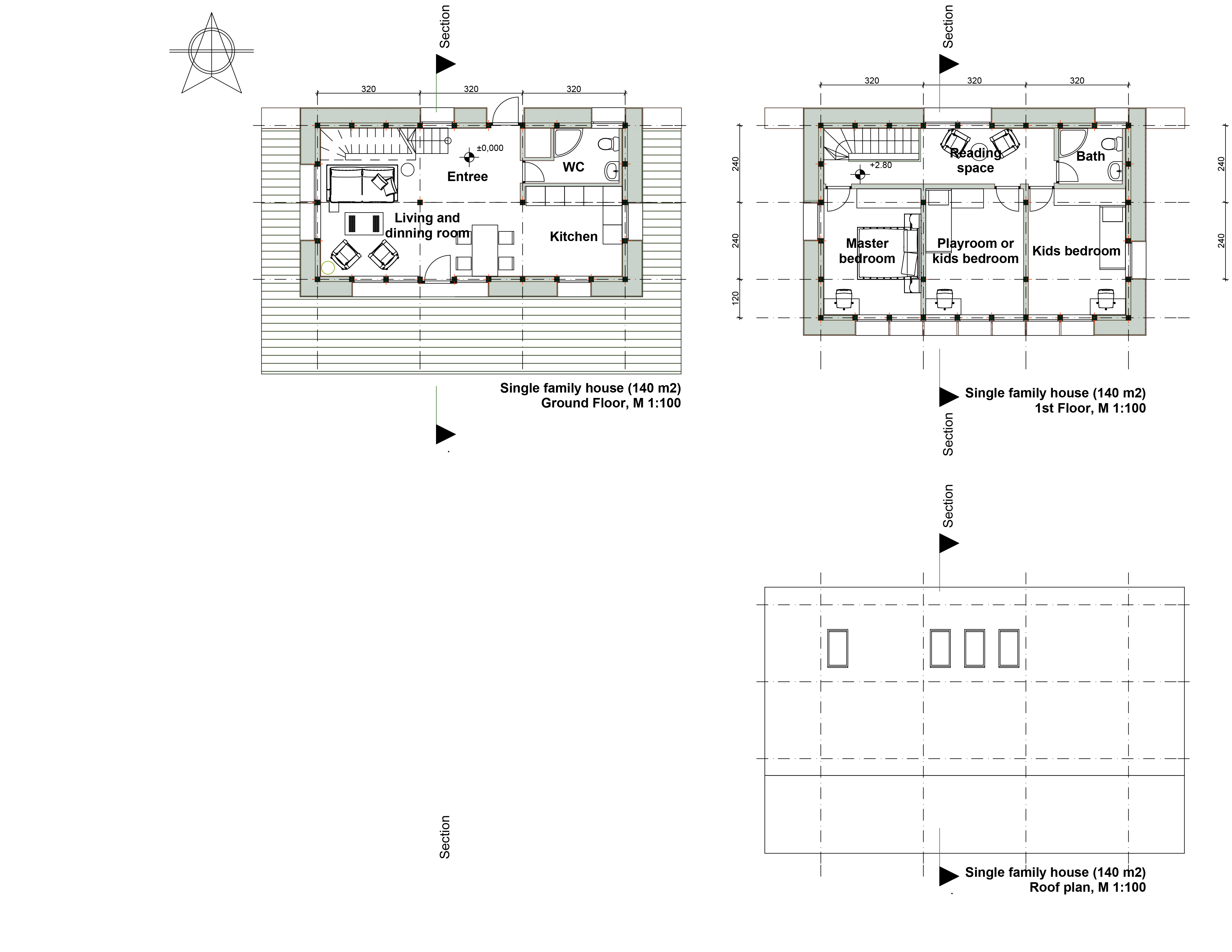
The entrance of the single family house is located on the north. An entree connects an open stair (with a library below) with a living room, dinning room, kitchen, wc and storage. The garden is accessible from the living room. On the 1.st floor is located a small reading space, master bedroom, two kids bedrooms or one kids bedroom and a play/study space; a bath. Skylights and north windows give light and beautiful view in the reading space. Total area = 140.00 m2

