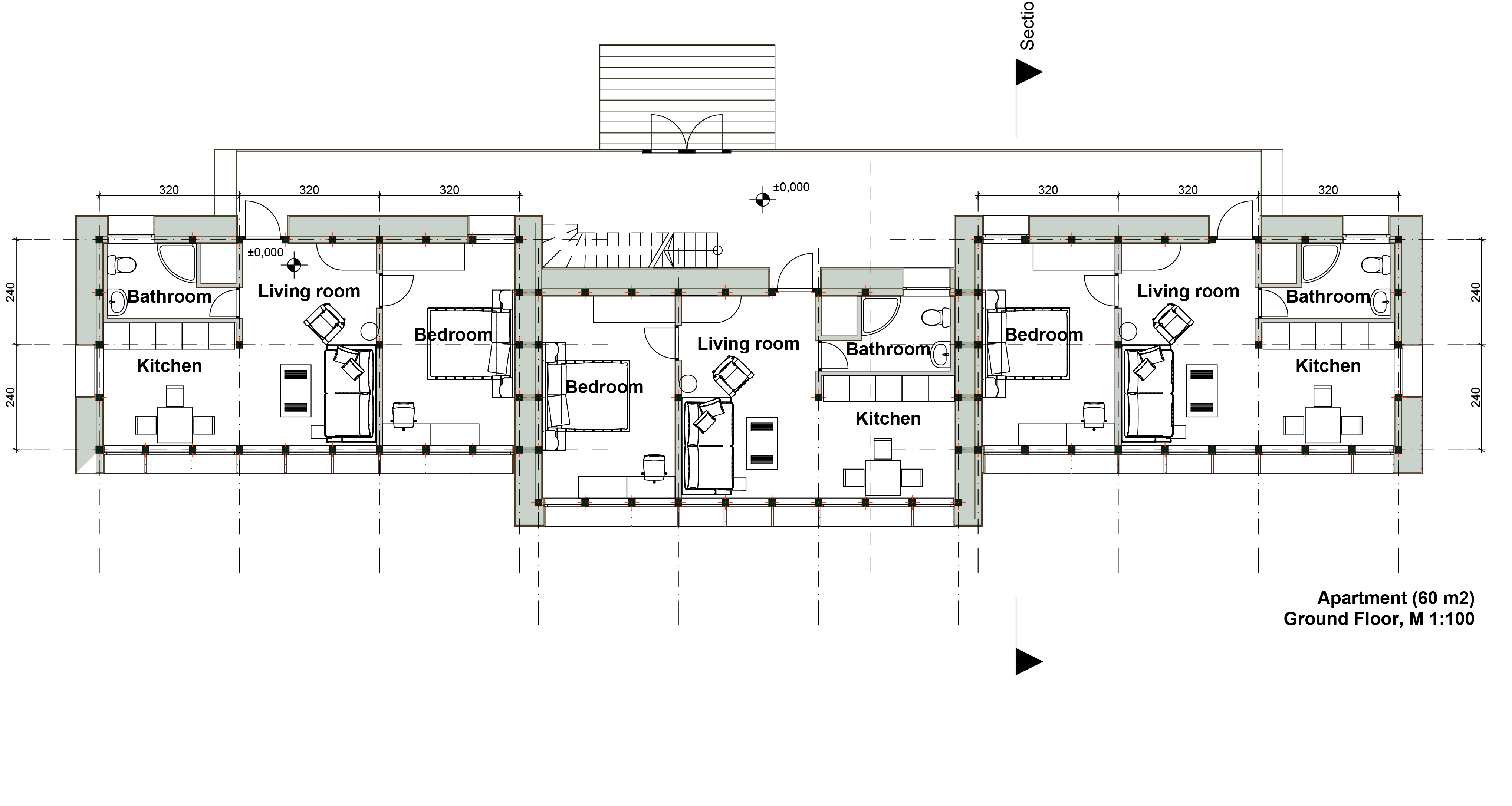
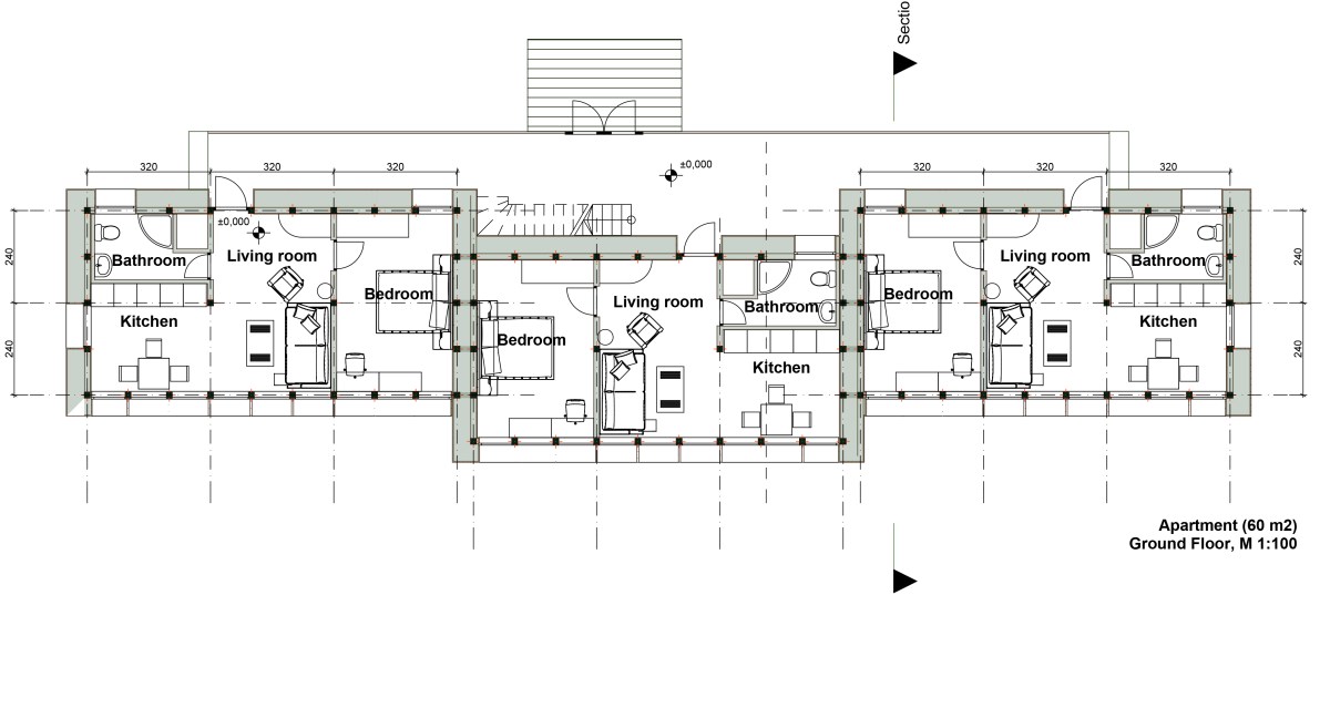
The entrance in the apartment block is located on the north and includes a foyer with a stair for the next levels. Every apartment has a living room, kitchen and dinning space, bedroom accessable from the living room and a bathroom with small storage. Terraces are designed on the south side and they provide natural summer sunshading. The central apartment is slided ahed of the other apartments, due to privacy and intimacy reasons. The ground floor is designed for elder people, the youngest inhabitants in the village should live on the 1.st floor and the top floor has a green roof garden, small offices and shops. The foyaer is out of the thermal envelope and is not heated.

